Vuokrattavana
Vuokrataan monien mahdollisuuksien toimistotilaa Oulun Keskustan Postitalosta. Tarjolla on 1.-5.kerroksissa tarpeisiinne muuntautuvaa toimistotilaa aina 111 m2:sta 1011 m2:een. Kiinteistö remontoidaan lattiasta kattoon ja toteutetaan tulevien vuokralaisten toiveiden mukaan. Runsaasti parkkipaikkoja henkilökunnalle sisäpihan parkkihallissa.
1.kerros/katutaso 111m2
3.kerros 672m2
4.kerros 672m2
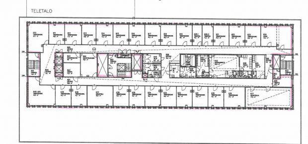
5.kerros 672m2+995.5m2
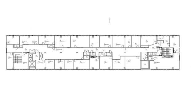
6.kerros 1011m2
Sijainti
Postitalon sijainti Oulun keskustassa kehittyvän aseman alueen ja suunnitteilla olevan monitoimiareenan vieressä on erinomainen. Postitalon viereen pääsee myös autolla ja kadunvarressa on pysäköintipaikkoja. Myös Oulun Keskustan iso parkkihalli, Kivisydän, on lähellä.




