Valoisa ja muunneltava 286 m² toimisto
Avia Wingin 5. kerroksessa sijaitseva toimistotila tarjoaa tehokkaan ja viihtyisän työympäristön aivan Helsinki-Vantaan lentoaseman vieressä. Tilassa yhdistyvät avotila ja työhuoneet, ja läpitalon sijainti takaa runsaasti luonnonvaloa sekä avarat näkymät lentokenttäalueelle ja kiitoteille.
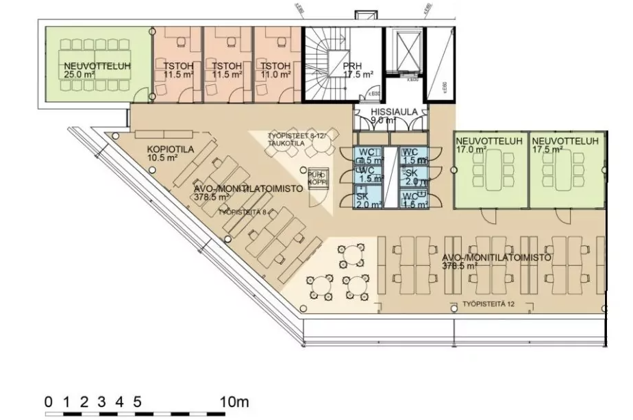
Monitilatoimisto on helposti muokattavissa yrityksesi tarpeiden mukaan – olipa kyseessä tiimityö, asiakastapaamiset tai rauhallinen keskittyminen. Katso pohjakuvista eri tilankäyttöesimerkit.
Käytössäsi ovat Avia Wingin kattavat palvelut.
Avia Wing – näkymiä, yhteyksiä ja toimivuutta lentokentän ytimessä
Avia Wing on moderni, seitsemänkerroksinen toimistotalo, joka sijaitsee aivan Helsinki-Vantaan lentoaseman vieressä. Vuonna 2001 valmistunut rakennus tarjoaa valoisia ja muunneltavia tiloja, jotka sopivat erinomaisesti kansainvälisesti toimiville yrityksille. Kiitotielle ja terminaalialueelle avautuvat näkymät tekevät työympäristöstä ainutlaatuisen – täällä olet aidosti Suomen kansainvälisimmässä osoitteessa.
Palvelut, jotka tekevät vaikutuksen – ja helpottavat arkea
Avia Wing tarjoaa vuokralaisilleen monipuoliset palvelut, jotka tukevat työn sujuvuutta ja henkilöstön viihtyvyyttä:
- Ylimmän kerroksen edustavat sauna- ja kokoustilat sekä kesäisin aurinkoterassi huikeilla kiitotienäkymillä
- Katutason hyvin varustellut neuvotteluhuoneet ja jopa 30 hengen koulutustila
- Toimivat vastaanotto- ja aulapalvelut
- Yhteiskeittiö ja viihtyisät taukotilat
- Runsaasti pysäköintitilaa työntekijöille ja vieraille
- Suuret sosiaalitilat ja selkeä pyöräpysäköinti työmatkaliikkujille
Toimitilat tarpeesi mukaan
Avia Wingin tilat ovat muunneltavissa yrityksesi tarpeiden mukaan – olipa kyseessä avotoimisto, työhuonejako tai yhdistelmä. Valoisat tilat ja näkymät luovat inspiroivan ympäristön, jossa työnteko sujuu tehokkaasti ja viihtyisästi.
Huippusijainti – kaikki lähellä kävellen
- Lentoasema: 5 min
- Juna-asema (Kehärata): 5 min
- Bussipysäkki: 3 min
Avia Wing sijaitsee vain muutaman minuutin kävelymatkan päässä Helsinki-Vantaan lentoaseman terminaalista, Kehäradan juna-asemalta ja bussipysäkiltä.
Finavian P3-pysäköintihalli on tien toisella puolella, ja tarvittavat autopaikat ovat helposti vuokrattavissa. Rakennuksen edessä on myös vieraspaikkoja lyhytaikaiseen pysäköintiin. Toimistolle on helppo saapua niin lentäen, julkisilla kuin omalla autolla – mistä päin tahansa.
Ota yhteyttä
Kiinnostuitko? Ota yhteyttä ja tule tutustumaan! Toimitilavälityspalvelumme on tilanhakijalle maksuton.



