Toimisto historiallisessa Kosmoramassa
Värikkään historian omaavasta Kosmoramasta on vapautumassa toisen kerroksen noin 200 m2 toimistotila. Tilaan voidaan yhdistää alakerran noin 200 m2 tila ja muodostaa noin 400 m2 kahden kerroksen kokonaisuus.
Nimensä Kosmorama-rakennus sai aikoinaan tehtaanomistaja Louis Schnittin aikana katutasossa sijainneen ”Elokuvateatteri Kosmoraman” mukaan. 1900-luvun alussa rakennuksen katutasossa oli liiketiloja ja kellarikerroksessa kansankeittiö, mutta myöhemmin, Åbo Akademin hankittua kiinteistön omakseen vuonna 1917 rakennuksessa toimi ensin mm. filosofian ja oikeustieteen alat ja myöhemmin 20-luvun kunnostuksen jälkeen mm. kemian ja tekniikan tieteet laboratorioineen.
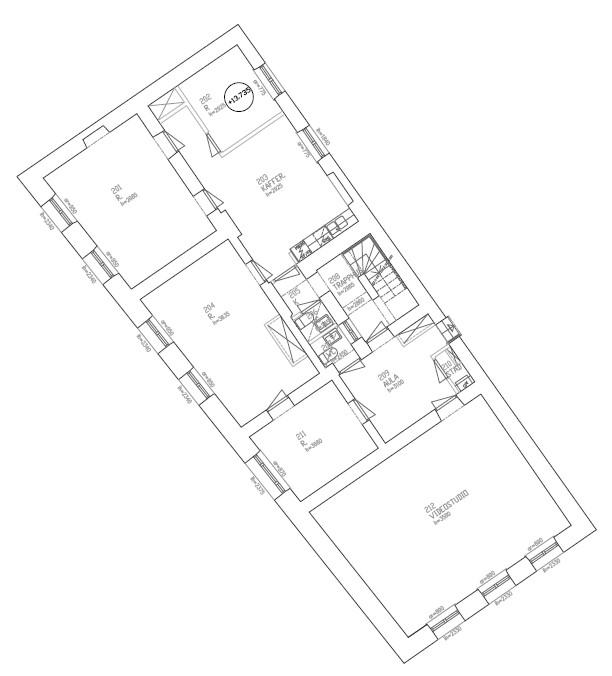
2.kerroksen tilat koostuvat aulatilasta, neuvottelutilasta, 3 työhuoneesta, kahviosta ja 2 x WC-tilasta + siivouskomerosta. Huonetilat huokuvat historiaa ja seinät ovat paksut, mitkä luovat arvokkaan tunnelman tiloille.
Tilat on viilennetty ja muu talotekniikka tuotu tämän päivän toimistostandardien mukaiseksi. Työhuoneissa on talon arkkitehtuuriin hyvin istuva tummahko, akustiikkaa parantava matto.
Olisiko tässä uusi tukikohta juuri teidän tarpeisiin? Ota yhteyttä ja jutellaan lisää ja sovitaan tutustumisaika näihin historiaa huokuviin tiloihin!




